This Apartment is rented out
Bos en Lommerplantsoen in Amsterdam
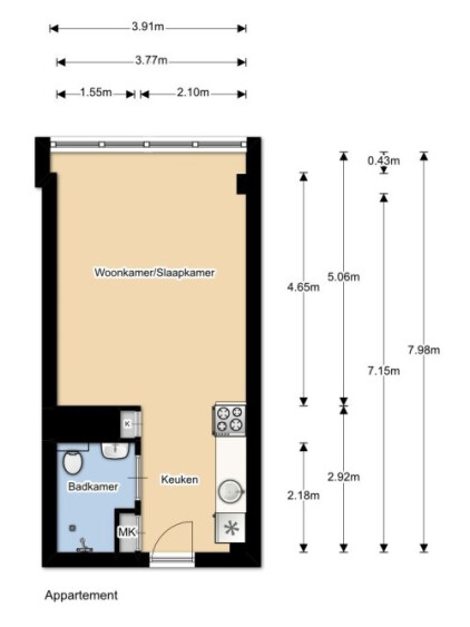
29 m2
2 rooms
?
Starting date
∞
Indefinite period
On this page you will find all information of this Apartment in Amsterdam. You can contact the advertiser if you have any questions.
Bemiddelingskosten
Nee
Object
Direct bij de eigenaar
Borg
890
Garantiestelling
Niet mogelijk
Huurtoeslag
Mogelijk
Huurtermijn
Onbepaalde termijn
Oplevering
Kaal
We send your personal message to the landlord, along with all extra information included in your profile. This means the landlord knows who you are and there is more chance of you being selected.
What does it mean to respond?
With a free response, we only send your email address to the landlord. The chances of getting an answer are far smaller compared to a personal response.